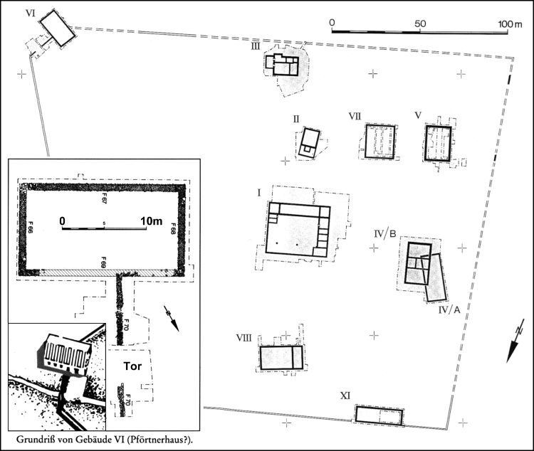
Villa rustica in Tengen-Büßlingen (Kr. Konstanz / BW); Plan of the villa as well as ground plan and reconstruction of the gate area with "lodge" IV (Abb. nach Heiligmann-Batsch 1997, Abb. 19; 27; Planck 2005, Abb. Seite 337).