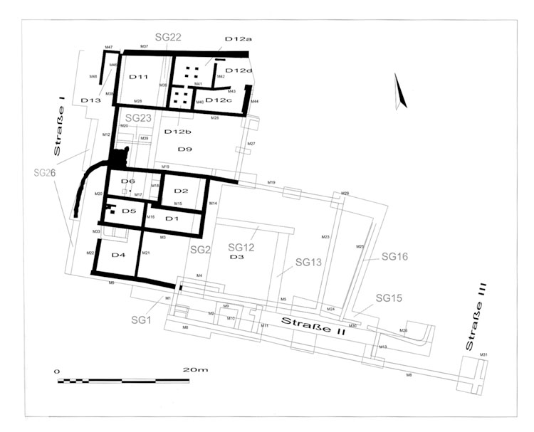
Untere Wohnterrasse, Areal II, Grundriss der Wohngebäude in Bauperiode 2 (ab ca. Mitte 2. Jh.)