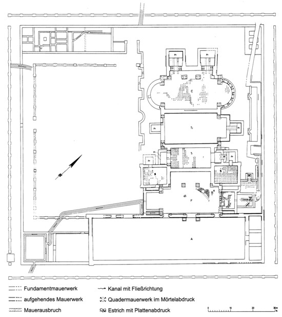
CUT -Xanten. Grundriss der Thermen (aus: Xantener Berichte 6, 488).